Clevelands Drive, Bolton, BL1

£1,150 pcm
Let Agreed
2 Bathrooms
2 Bedrooms
1 Receptions
Facebook

Full Details

Stephen Roe introduces to the market this exceptional furnished apartment available to rent. Located in a highly sought after development off Chorley New Road, Heaton. Upon driving up to the apartment, the grounds are immaculate and inviting, giving a real wow factor. The apartment is set within a well maintained building, which is accessed via a coded door and intercom system, a grand staircase leading to each floor and lift facilities to all floors are also installed. The apartment instantly offers a luxury feel, with two good sized bedrooms, the master with en-suite, a large open plan lounge/diner and a modern kitchen with integrated appliances, a modern bathroom and storage facilities. Furnished to a high standard, this apartment is perfect for someone looking to move straight into and feel at home. 

Qualification process

Proof of income

We require the following too prove your funds can cover the monthly rental required. You will need to earn 2.5 x your annual rent to pass our referencing or you may be asked to provide a guarantor. (E.G Rental value is £750 so you will require (£750 x 12) x 2.5 = Your Yearly Salary needs be £ 18,000)

Guarantor

Should you need a guarantor this shall be someone who agrees to pay the rent or any damages if you can’t. The guarantor will also go through a similar referencing process, credit checks and they can't have any adverse credit. They'll need a yearly salary of 3 x the yearly rental, to pass referencing and be living in the UK.

Holding Deposit

We request a non-refundable Holding Deposit to reserve a property which is payable to the amount of 1 week’s rent. Which is calculated by the Monthly rent x 12 ÷ 52 = maximum holding deposit. Please Note: This will be withheld if any relevant person (including any guarantor(s) withdraw from the tenancy, fail a Right-to-Rent check, provide material significant false or misleading information, or fail to sign their tenancy agreement (and / or Deed of Guarantee) within 15 calendar days (or other Deadline for Agreement as mutually agreed in writing).

Deposit
A security deposit of 5 weeks rent to be held with the tenancy deposit scheme www.tenancydepositscheme.com this equates to monthly rent x 12 / 52 (weeks in the year) x 5
E.G Rental Value £750
£750 x 12 = £9000 / 52 = £173.08 x 5
= £865.40 Deposit

Change of tenancy
Change in tenancy agreement up to £50 inc VAT

Late Payment of rent
Late payment of rent will incur a 3% charge above the Bank Of England base rate


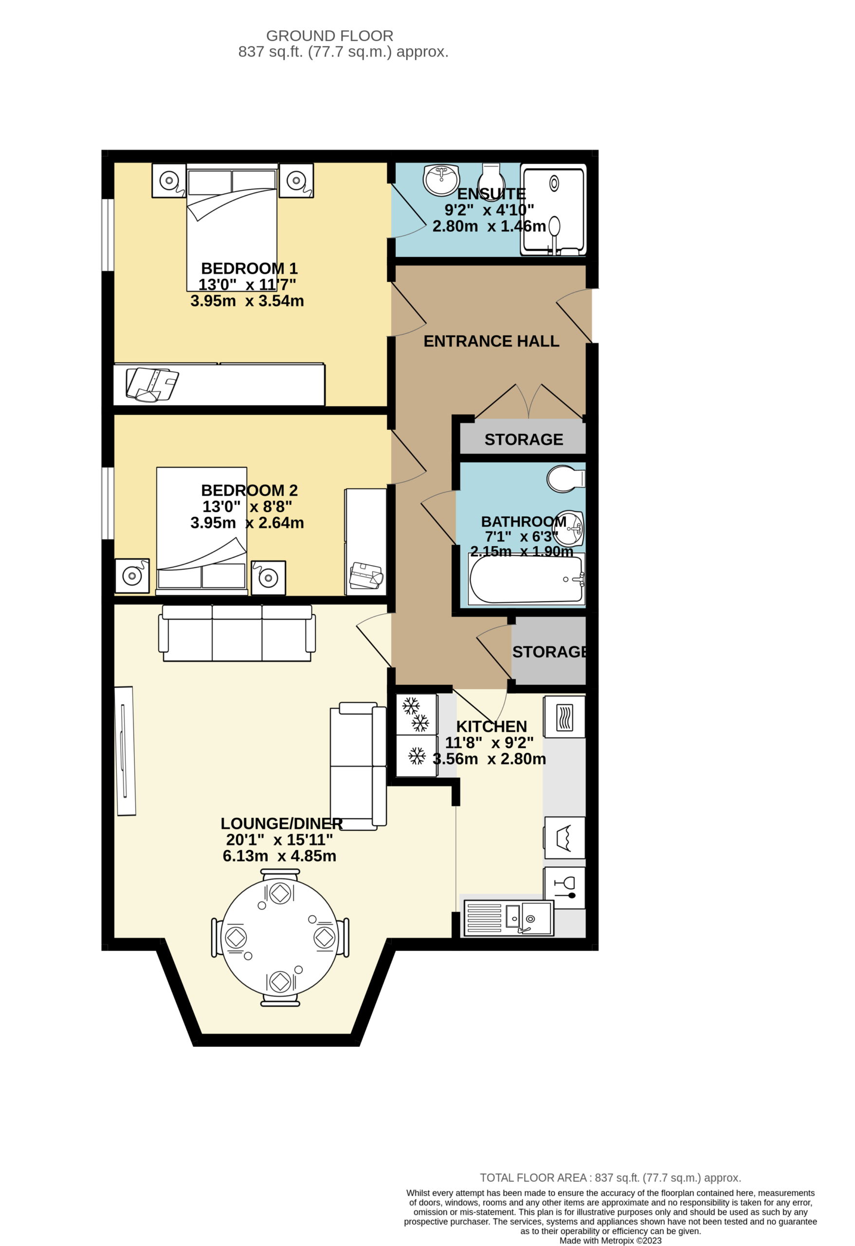
Lounge/Diner 20' 2" x 15' 11" (6.15m x 4.85m)
Open plan lounge diner which also opens onto the kitchen

Kitchen 11' 8" x 9' 5" (3.56m x 2.87m)
Width is 9'5" narrowing to 6'3"
Integrated dishwasher, washing machine, fridge/freezer.

Bedroom One 11' 8" x 13' 0" (3.56m x 3.96m)

En-Suite 4' 10" x 9' 2" (1.47m x 2.79m)
Double shower, W.C. & vanity sink

Bedroom Two 8' 9" x 13' 0" (2.67m x 3.96m)

Bathroom 7' 0" x 6' 5" (2.13m x 1.96m)
Three piece bathroom suite

Entrance Hallway
Storage cupboards off the entrance hallway

Apartment Hallway and lift

Property Features

  • Furnished to a high standard
  • Lift facilities within the development
  • Highly desirable location
  • Ready to let immediately

Floorplans

Map View

Street View

Virtual Tour

  • Book Viewing
  • Floorplan
  • Print Details

Want to know more? Enquire further

Mortgage Calculator

Request a Valuation

Do You Have a Property To Sell?

Find out how much your property is worth with a free valuation